
[21601]二階の六畳の部屋の揺れ、振動、家具が動く
質問者:みちこ / 最新の回答・ご意見者:みちこ / 回答・ご意見数:6件
カテゴリ:工事ミス・トラブル / 2025年09月30日 21:32
施工ミスなのか、何が原因でしょうか?

みちこ
所在地:大阪府
2025年09月30日 21:50

みちこ
所在地:大阪府
2025年10月03日 09:58

みちこ
所在地:大阪府
2025年10月03日 10:03

みちこ
所在地:大阪府
2025年10月03日 10:04

みちこ
所在地:大阪府
2025年10月03日 16:27
根太補強、合板補強、フローリング貼で厚みも十分です。
躯体がよわいのではないですか?
↑こんな返答がきました。

みちこ
所在地:大阪府
2025年10月10日 15:01

みちこ
所在地:大阪府
2025年10月24日 20:13

みちこ
所在地:大阪府
2025年10月03日 10:08

みちこ
所在地:大阪府
2025年10月10日 11:51

みちこ
所在地:大阪府
2025年10月24日 10:16
これまでの回答・ご意見数6件
アドバイザーからの回答
アドバイザー
相談者
※アドバイザー以外の一般ユーザーからのご意見
一般ユーザー
相談者

取締られ役平社員
所在地:北海道
2025年10月01日 09:05
URL:
家づくりの想い:
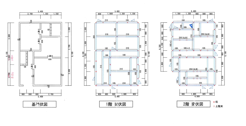
>築30年の木造二階建ての家をスケルトンリフォームしました。
>二階フローリングの部屋だけが、背伸びしてドンとかかとを落とすだけで、部屋が揺れ、振動します。
改修前後の平面図はございますか?改修前と改修後の比較が必要と考えます。
「スケルトン」ということですが、2階の間取りの大幅な変更はなかったでしょうか?もしくは、1階の間取りで大幅に大空間化していませんか?
あくまでも「推測」の域を出ませんが、
2階の間取りの変更により、件の部屋の床の強度を取りづらい状況になっている?のかも。
1階の大空間化により、件の部屋の床強度に影響を与えている?のかも。
いずれにしても、改修前後の間取り、スケルトンにした後の各横架材、小根太などの配置などの情報が欲しい気がします。
ここの場では、詳細にそれらを比較することは難しいかもしれません。
お近くの「建築士会」などにご相談をされると良いのではないでしょうか??
なお、このような場で、いつも言うのですが、
責任のない「第三者」の意見に「右往左往」しないようには、老婆心ながら言い添えます。

みちこ
所在地:大阪府
2025年10月03日 00:48

取締られ役平社員
所在地:北海道
2025年10月03日 08:47
URL:
家づくりの想い:
>1MB以下にできず、掲載できませんでした。
最近は写真としてのきれいさは、段違いですがサイズも確かに段違いです。
確か画像閲覧ソフトに付属の機能で、小さくできたはず?
施工中も。ですが、図面の添付をお願いします。

みちこ
所在地:大阪府
2025年10月03日 21:11

取締られ役平社員
所在地:北海道
2025年10月06日 09:30
URL:
家づくりの想い:
改修の前後を比較すると、
揺れると言われる部屋の下階の状況ですが、改修以前には「洗面所」「和室」「浴室」による壁があります。
その後、その下には「壁」「柱」等の荷重を負担するものが確認できません。
おそらくですが、構造強度の為には、「梁」等の補強はされていると考えますが、・・・・
ここからは「推測」ですが、
2階のこの部屋の床、間仕切り壁の「振動」というか動きを受け止めるものは、「梁」しかありません。
要は小上がりの本棚の角にある柱から右側の外壁に渡してある「梁」が上階の床、壁と一緒に揺れている?振動を「止める」ことができなくて、その辺一帯一緒に動いている。
表現的にはそんな感じですが?ご理解できますでしょうか?
じゃあ、どうすれば止まるんだ?と言われても、「一本柱が必要ですね」としか言い様は無い気はします。
きっと、梁の補強はすでにされてはいるのでしょうから、
さらに補強しても、振動が弱くなりはしても、無くなることは無いでしょう。
もう一つ、「梁の補強」をすることは、そのための天井高が低くなるとか、「下がり壁」としての、出っ張りができたりすることは確実でしょう。
もちろん「柱」を立てれば、その方が邪魔くさいかもしれませんね。
実際には一本だけ柱が確認できますが、問題の部屋の真下では無いようですし、これの残した意味合いと、振動の発生を押さえる意味合いは薄いのだと判断しました。
現場を詳細に確認しての話ではありません。施工された業者さんとのご相談をおすすめします。
あるいはお近くの「建築士会」など、第3者の立場で客観的にアドバイスをもらえるところへのご相談も有益だと考えます。

みちこ
所在地:大阪府
2025年10月07日 11:51
梁補強?キッチンのどこかに柱が必要という事なのですね?
素人の施主がここに梁を入れて、柱を追加してと指示しないといけなかったのでしょうか?!フルスケルトンにしている時点で最低限の補強はキチンとしてもらえるものかと思ってました。

取締られ役平社員
所在地:北海道
2025年10月07日 13:49
URL:
家づくりの想い:
>ルスケルトンにしている時点で最低限の補強はキチンとしてもらえるものかと思ってました。
通常は、「その通り」のはずですね。
施工する業者のスキル、考え方、良くも悪くも「場数(ばかず)を踏んだ回数」など、どこまで先を読めるか?だと思うのです。
結果論で、起きた事象を云々は簡単ですが、「こうなりそう?」とか、「可能性として高い、低い」とかは、先読みは相当に難しいと思います。
私も、それで泣かされたり、喜んだりしていますので・・・
それ以上に、何も問題が無くて「当たり前」、あることは「想定内」でもあります。「ゼロ」にはしたいんですがね。
>新築じゃあるまいし、1000万台の工事でそこまで完璧にできないでしょう。
それは、身内ならともかく、お客様に言って良い言葉ではありませんね。
「ならば、どのように対応すれば、納得していただけるか?」という、姿勢がほしいです。
他社だから言える言葉ですね、私も。
図面上で言えることは、限られています。
あとは、実際に現場の状況にどのように沿わせられるか?だと思います。
図面で見えないところ、図面で表されないところ・・・そこに何か解決があるかもしれません。
施工業者を短絡的に責めるのでは無く、
うまいこと「気持ちよく乗せて使う」賢いお客さんをされますように・・・・

みちこ
所在地:大阪府
2025年10月07日 14:49

現場監督A
所在地:神奈川県
2025年10月09日 22:15
URL:
家づくりの想い:現場監督歴20年。アフターも…
2点目として、元々の構造がネダ工法を採用されていますが、ネダピッチが飛んでいます。目測ですが、455ピッチでネダが入っています。このネダにもう一本抱かせる様に補強をしてありますが、ネダ間の距離が広いためこの部分の床がたわんで揺れているのかなと思います。ネダの上でも揺れますか?抱かせて補強ではなく、根だとネダの間に補強をしてねだピッチを細かくしたほうが丈夫になったかなと思います。こっちの問題は経験とスキルがものを言うので、そう言う工務店さんに当たってしまったという形になるかも知れません。

みちこ
所在地:大阪府
2025年10月10日 11:49

現場監督A
所在地:神奈川県
2025年10月13日 19:27
URL:
家づくりの想い:現場監督歴20年。アフターも…
>>ネダの上でも揺れますか?
これにつきます。ネダの上では揺れないけど、ネダとネダの間だけ揺れるのであれば、ネダの上に貼った床の強度不足になります。ネダの間隔が1尺間隔であれば合板が2枚くらい貼ってあれば持ちますが、写真上1尺5寸は飛んでるのでそれだけ床に厚みが必要です。
またネダの補強ですが、接着剤だけでは一体化しないので補強になりません。写真をよく見ると釘も売ってありますが本数が足りなくやはり一体化してないので強度が足りないと思います。それでも6尺の長さで1本で通っていれば強度は出そうですが、細切れでは効果はないでしょう。
また、SPF材というのはまっすぐではない粗い材なので、既存の材木と抱き合わせても通りが取れずにデコボクしてしまい、浮きが発生しているのかもしれません。
それから、「工務店が言うには、梁は210あったので、」という件なのですが、既存の間取りで言うところの和室1と洗面+浴室の間の壁がそっくりそのままなくなっていますが、少なくとも、洗面と浴室の間に柱があったと思います。最後の構造伏せ図にはないですが、部屋の角なので既存柱としてあったはずですがなくなっています。柱を一本も抜いていないは嘘なのではないでしょうか・・・。この柱を抜いたことにより上階の部屋が揺れていると思います。
こちらで原因を詰めても全てが推測になってしまうので、実際には現場にいる方々で原因を究明してどうするかを考えないといけないのですが、それを判断する意味でも、壁量の確認を誰がどうしたのか?ということを確認なさってみてください。そのことから、今回の工事がきちんと設計の知識があった上で行われたのか?または、感覚で行われたのかがわかります。感覚という事は裏付けがないという事です。構造を変えないリフォームであればそれでもよいですが、明らかに柱を抜いていると思います。また、「1000万円台の工事」・・・1000万円台もする高価な工事です。ここまでお金をかけて買いたい工事をしておいて、構造の確認もしないで塞ぐなんてもったいない!裏付けがなく行われた工事なのであれば、その行われていない、「設計」を入れて検証すべきと思います。それを誰が負担するのか、誰の責任なのかは、当事者間のエビデンスや空気次第ですが、少なくとも、「素人の施主がここに梁を入れて、柱を追加してと指示しないといけなかった」わけではないと思います。

みちこ
所在地:大阪府
2025年10月24日 09:57

