
始めまして。素人で住宅建築のことは全くわかりませんので、ご相談させてください。
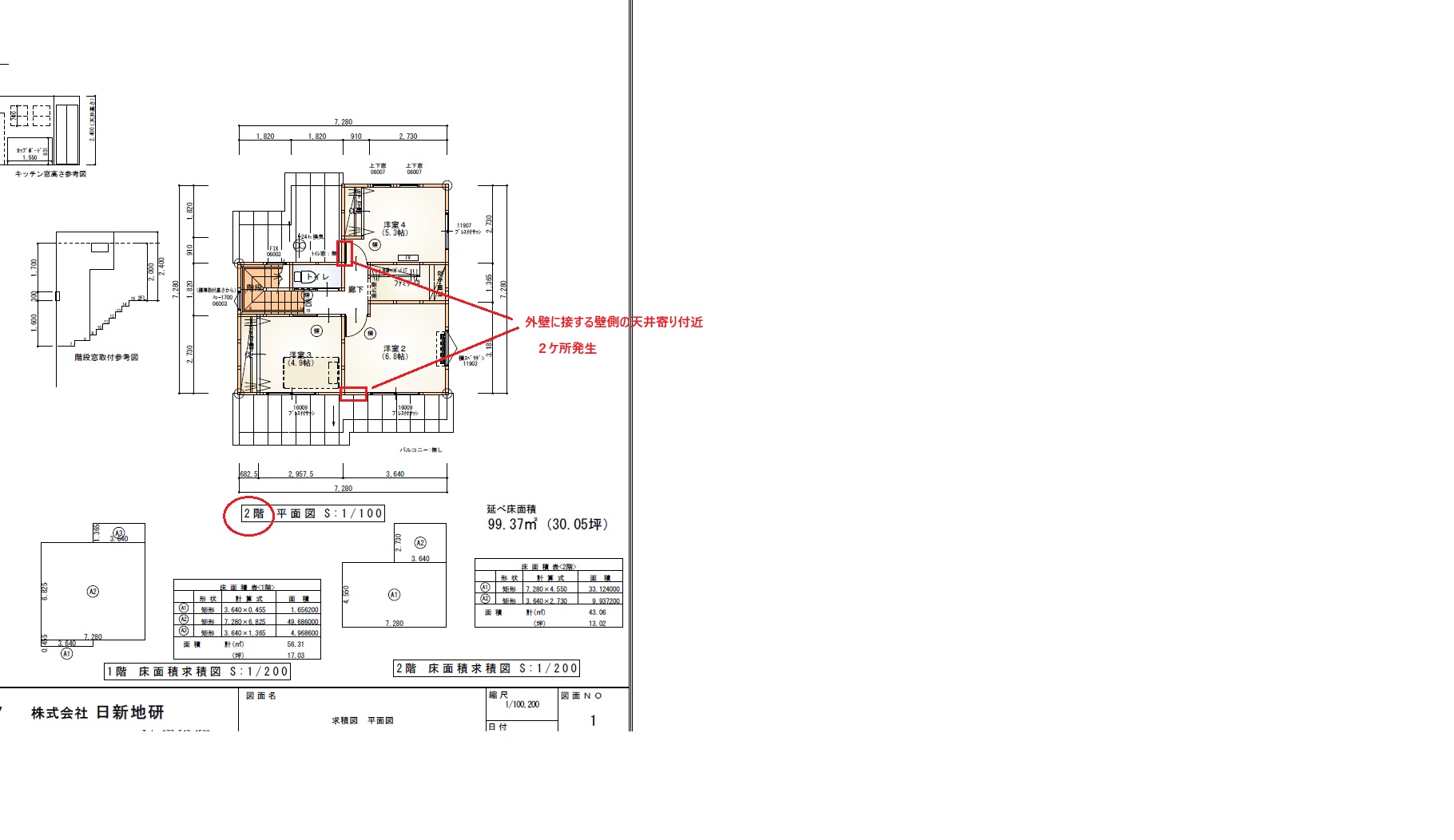
昨年2025年7月に、木造在来工法の2階建ての注文住宅を新築しました。買った当初(夏頃)は、烏が屋根を歩いているのか というくらいのタタタという音だけでした。しかし昨年の秋頃から 北風(北西)が吹くと洋室4(別添付の北部屋)と南部屋の2個所の屋根ではなく どうも壁の中から音がします。かなり大きく、タタタタタタタタタタとけたたましく連打します。
一度工務店の職人さんに天井裏に上がって頂いて、グラスウールと筋交いの緩いところはビス止めされましたが改善されず、外壁の通気層からの影響(外壁の留め金具の緩みか 防湿シートのパタパタ音)ではないかということになりました。
そこで、こちらのサイトの投稿にも掲載がありましたが、 対策として、『外壁通気層の入り口にパッキンを入れて風の侵入を塞いで様子をみてみましょう』ということで、長細いゴムかスポンジかわかりませんが、職人さんが屋根に上がって塞いでくれました。その後 今のところ音の問題は解消されました。
しかし、別 投稿にもありました 風の侵入を塞いでも根本的な原因解決にはなっていないですよね。通気層を塞いだら、本来の機能が損なわれ その影響(結露や雨漏り)もあるのではないですかね?
そこで、お尋ねしたいのが
? まず、添付録音の音から(MP3は添付されませんでした↓)、何が原因と思われますでしょうか?
イメージ⇒タタタタタタタタタタという回転する扇風機の羽にプラスチックの薄板を宛がったような音。
? 工務店さんは「パッキンを入れて様子を見ましょう」と言って、今はその途中ですが、今後 工務店さんにどのように交渉(指示)して行けばよろしいでしょうか?
一生懸命に造って頂いた工務店さんを疑うわけではありませんが、私としては根本的な不備が解決すれば それでいいと思っていますので、原因と今後の話の進め方(持って行き方)をご享受ください。
すみませんが、宜しくお願い致します。
昨年2025年7月に、木造在来工法の2階建ての注文住宅を新築しました。買った当初(夏頃)は、烏が屋根を歩いているのか というくらいのタタタという音だけでした。しかし昨年の秋頃から 北風(北西)が吹くと洋室4(別添付の北部屋)と南部屋の2個所の屋根ではなく どうも壁の中から音がします。かなり大きく、タタタタタタタタタタとけたたましく連打します。
一度工務店の職人さんに天井裏に上がって頂いて、グラスウールと筋交いの緩いところはビス止めされましたが改善されず、外壁の通気層からの影響(外壁の留め金具の緩みか 防湿シートのパタパタ音)ではないかということになりました。
そこで、こちらのサイトの投稿にも掲載がありましたが、 対策として、『外壁通気層の入り口にパッキンを入れて風の侵入を塞いで様子をみてみましょう』ということで、長細いゴムかスポンジかわかりませんが、職人さんが屋根に上がって塞いでくれました。その後 今のところ音の問題は解消されました。
しかし、別 投稿にもありました 風の侵入を塞いでも根本的な原因解決にはなっていないですよね。通気層を塞いだら、本来の機能が損なわれ その影響(結露や雨漏り)もあるのではないですかね?
そこで、お尋ねしたいのが
? まず、添付録音の音から(MP3は添付されませんでした↓)、何が原因と思われますでしょうか?
イメージ⇒タタタタタタタタタタという回転する扇風機の羽にプラスチックの薄板を宛がったような音。
? 工務店さんは「パッキンを入れて様子を見ましょう」と言って、今はその途中ですが、今後 工務店さんにどのように交渉(指示)して行けばよろしいでしょうか?
一生懸命に造って頂いた工務店さんを疑うわけではありませんが、私としては根本的な不備が解決すれば それでいいと思っていますので、原因と今後の話の進め方(持って行き方)をご享受ください。
すみませんが、宜しくお願い致します。
これまでの回答・ご意見数2件
アドバイザーからの回答
アドバイザー
相談者

栃木 渡
一級建築士事務所 株式会社 北工房 代表取締役
2026年02月18日 14:12
所在地:北海道札幌市中央区北1条西15丁目1-3 大通ハイム409
URL:http://www.kitakobo.com/
PR:住宅設計に関わって30年が経…
※アドバイザー以外の一般ユーザーからのご意見
一般ユーザー
相談者

取締られ役平社員
所在地:北海道
2026年02月20日 14:05
URL:
家づくりの想い:
栃木様の言われるとおり、重ね部分からの音の可能性が高いと思います。
とりあえず、施工した業者さんに確認すべきこととして、
※通気防水シートの重ねをどのように納めていたか?
(通気防水シートの重ね部分は、テープなどを貼っていたのか?)
※小屋部分(平屋部分)の屋根と2階の壁との取り合い部分は、どのように納めていたか?
水処理の見地から言うと、通気防水シートは通気層下地の真下、下部のいろいろな部材、ルーフイングや屋根材などの壁に対する立ち上げ部の最表面になるはずです。
要は、例えばトタン葺きの場合は、多少の違いは有るとして、
屋根の野地板の上と2階壁との上に、ルーフィングが張られ、それは当然、屋根から壁に立ち上がっています。
その上にさらに捨て板金としてL形に曲げた板金で屋根と壁とに板金を施工しているでしょう。
屋根の場合は、その上に本番の板金があると思います。もちろん、板金は壁に立ち上げをされているはずです。
壁は、その立ち上げた板金の上に、「上に」です、通気防水シートが重なります。ここで、おのおのいろいろな方々のやり方で、途中でなにがしかの防水施工が各層に施される場合がありますね。
いずれにしても、板金の外側に通気防水シートが、重なっていると思われ、それのこぐちを、放っておくと、板金の上を吹く風は、通気層に沿ってあがり、板金とシートの間で、当該の音を発生させる可能性があると言うことを、考えました。
長くなったかもですが。
この板金とシートの間を、両面テープ、ブチルテープ、防水テープ等のなにがしかのテープで、押さえる必要があったのでは?
これをしていないのであれば、外壁の最下部を剥がす、切り取る等の、比較的小規模(十分に大きいですけど・・・)外壁すべてを剥がす、などのことをしなくても、改修は可能では無いかと考えました。
施工業者に聞き取りして、シートの重ね部分もテープ貼りしてない。問うことであれば、当然、全面的なことになりますが、テープ貼りはしてあるが?ということであれば、ここを疑ってみる価値はあるかと考えます。
とりあえず、施工した業者さんに確認すべきこととして、
※通気防水シートの重ねをどのように納めていたか?
(通気防水シートの重ね部分は、テープなどを貼っていたのか?)
※小屋部分(平屋部分)の屋根と2階の壁との取り合い部分は、どのように納めていたか?
水処理の見地から言うと、通気防水シートは通気層下地の真下、下部のいろいろな部材、ルーフイングや屋根材などの壁に対する立ち上げ部の最表面になるはずです。
要は、例えばトタン葺きの場合は、多少の違いは有るとして、
屋根の野地板の上と2階壁との上に、ルーフィングが張られ、それは当然、屋根から壁に立ち上がっています。
その上にさらに捨て板金としてL形に曲げた板金で屋根と壁とに板金を施工しているでしょう。
屋根の場合は、その上に本番の板金があると思います。もちろん、板金は壁に立ち上げをされているはずです。
壁は、その立ち上げた板金の上に、「上に」です、通気防水シートが重なります。ここで、おのおのいろいろな方々のやり方で、途中でなにがしかの防水施工が各層に施される場合がありますね。
いずれにしても、板金の外側に通気防水シートが、重なっていると思われ、それのこぐちを、放っておくと、板金の上を吹く風は、通気層に沿ってあがり、板金とシートの間で、当該の音を発生させる可能性があると言うことを、考えました。
長くなったかもですが。
この板金とシートの間を、両面テープ、ブチルテープ、防水テープ等のなにがしかのテープで、押さえる必要があったのでは?
これをしていないのであれば、外壁の最下部を剥がす、切り取る等の、比較的小規模(十分に大きいですけど・・・)外壁すべてを剥がす、などのことをしなくても、改修は可能では無いかと考えました。
施工業者に聞き取りして、シートの重ね部分もテープ貼りしてない。問うことであれば、当然、全面的なことになりますが、テープ貼りはしてあるが?ということであれば、ここを疑ってみる価値はあるかと考えます。

